Attrak­tive Lage! Großzü­gige Büro-/Praxis­ein­heit im Stadt­zen­trum von Balingen!

72336 Balingen, Bürohaus zur Miete

Kontaktdaten

Vivien Daub, Köhl-Jetter Immobilien GmbH

Objektdaten

  • Objekt-ID
    1074
  • Objekttypen
    Büro/Praxis, Bürohaus
  • Adresse
    72336 Balingen
  • Lage
    Stadtzentrum
  • Etage
    2
  • Etagen im Haus
    3
  • Gewerbeeinheiten
    3
  • Bürofläche ca.
    160 m²
  • Büroteilfläche ca.
    160 m²
  • Teilbar ab
    160 m²
  • Zimmer
    7
  • Separate WC
    2
  • Küche
    Einbauküche
  • Heizungsart
    Zentralheizung
  • Wesentlicher Energieträger
    Gas
  • Baujahr
    1884
  • Zustand
    gepflegt
  • Verfügbar ab
    In Absprache (Einheit steht leer)
  • Mieter­provision (gewerblich)
    2,38 Monatsmieten inkl. MwSt.
  • Kaltmiete
    1.125,00 EUR
  • Nebenkosten
    180,00 EUR
  • Warmmiete
    1.552,95 EUR (zzgl. Heizkosten)

Ausstattung / Merkmale

  • ✓ Abstellraum
  • ✓ Einbauküche
  • ✓ Kabel-/Sat-TV
  • ✓ Linoleumboden
  • ✓ Personenaufzug
  • ✓ Räume veränderbar
  • ✓ Reinigungsservice
  • ✓ Separates WC
  • ✓ Teeküche
  • ✓ Teppichboden

Energieausweis

  • Energieausweistyp
    Verbrauchs­ausweis
  • Gültig bis
    06.05.2029
  • Baujahr lt. Energieausweis
    1884
  • Wesentlicher Energieträger
    Gas
  • Endenergie­verbrauch
    102,00 kWh/(m²·a)
  • Warmwasser enthalten
    ja
0 25 50 75 100 125 150 175 200 225 250+ H G F E D C B A A+ H G F E D C B A A+ Endenergieverbrauch 102,00 kWh/(m²·a)

Objekt­beschreibung

Beschreibung

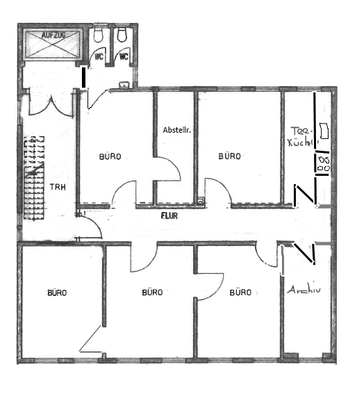
Diese gut aufgeteilte Büro-/Praxisfläche befindet sich im 2.Obergeschoss eines gepflegten Wohn-/Geschäftshauses im Zentrum von Balingen und verteilt sich auf einer Fläche von ca. 160 m². Sie gelangen bequem mit dem Aufzug bis vor die Einheit.

Über einen Flurbereich gelangen Sie in die verschiedenen Räume. Die Fläche besteht aus insgesamt fünf Büros, welche sich ideal aufteilen lassen. Eine Teeküche mit einer Einbauküche steht Ihnen ebenfalls zur Verfügung und iist im Mietpreis inklusive. Weiter haben Sie die Möglichkeit die beiden Abstellräume als Kopier-/Lager – oder Serverraum zu nutzen.

Die getrennte Toiletten wurden vor zwei Jahren neu gestaltet, sodass diese nun über ein Büro-/Empfangsraum zu erreichen sind. In weiteren drei Räumen wurde, ebenfalls vor zwei Jahren, der Nadelfilzboden durch ein neuer Linoleumboden ersetzt.

Für Ihre Kunden stehen in unmittelbarer Nähe des Gebäudes öffentliche Stellplätze zur Verfügung.

Rundum eine attraktive und moderne Gewerbeeinheit, die flexibel genutzt werden kann.

Energieausweis: Verbrauch, 102kWh/(m²*a), Gas, 1884, gültig bis 06.05.2029

Sonstiges

Alle Angaben sind ohne Gewähr und basieren ausschließlich auf Informationen, die uns von unserem Auftraggeber übermittelt wurden. Für Vollständigkeit, Richtigkeit und Aktualität dieser Daten kann von uns keine Haftung übernommen werden. Eine Weitergabe des Exposés an Dritte nur mit Einverständnis des Anbieters. Der Vermieter wünscht sich ein langsfristiges Mietverhältnis.

Lage

Die Räumlichkeiten befinden sich im 2.Obergeschoss eines gepflegten Geschäftshauses in hervorragender Geschäftslage der Innenstadt Balingen. In unmittelbarer Nachbarschaft sind zahlreiche weitere Einkaufsmöglichkeiten und Einzelhandelsgeschäfte wie z.B. Euronics, B2-Biomarkt, Optik Metzger, die Zentrale der Sparkasse, der Bahnhof, der Busbahnhof u.v.m., sowie Cafès und Bars.
Die große Kreisstadt Balingen mit ihren ca. 35.000 Einwohnern liegt verkehrsgünstig zwischen Stuttgart (in 45 Minuten erreicht man den Stuttgarter Flughafen und die neue Messe) und dem Bodensee (über A81 in 60 Minuten in Konstanz).

Sie sehen gerade einen Platzhalterinhalt von Google Maps. Um auf den eigentlichen Inhalt zuzugreifen, klicken Sie auf die Schaltfläche unten. Bitte beachten Sie, dass dabei Daten an Drittanbieter weitergegeben werden.

Mehr Informationen

Direktanfrage










    Ich möchte den kostenlosen Newsletter abonnieren und über aktuelle Angebote, Tipps und Trends auf dem Laufenden gehalten werden.


    Ihre Daten werden sicher per SSL-Verschlüsselung übertragen und nicht an Dritte weitergegeben.

    *Pflichtfeld

    Immobiliendaten-Import und Darstellung für WordPress: WP-ImmoMakler